Wybierając odpowiednią lokalizację dla pompy ciepła Mitsubishi, warto wziąć pod uwagę nie tylko estetykę, ale także aspekty techniczne. Najlepsze miejsce to takie, które zapewni wygodny dostęp do instalacji oraz ochroni urządzenie przed niekorzystnymi warunkami atmosferycznymi. Pamiętajmy, że pompa ciepła działa jak mały czołg, więc solidne podparcie w postaci odpowiedniego fundamentu to kluczowy krok. Według wytycznych, głębokość fundamentu powinna wynosić od 80 do 100 cm, co zależy od konkretnego modelu, a to pozwoli uniknąć niespodzianek związanych ze zmieniającym się gruntem.
Jednak to nie wszystko! Idealna lokalizacja to także taka, która zapewnia swobodny przepływ powietrza, z dala od przeszkód, takich jak krzewy czy inne budynki. Nikt nie pragnie, aby jego pompa ciepła musiała pracować na pełnych obrotach, walcząc z wiatrem, niczym superbohater w kiepskim filmie! Dlatego warto zadbać o co najmniej 1 metr wolnej przestrzeni wokół urządzenia. Gdy myślisz o komforcie w ogrzewanym wnętrzu, postaw na lokalizację z dostępem do najlepszych źródeł ciepła, czyli promieni słonecznych oraz stabilnego gruntu.
Fundamentacja jako klucz do sukcesu
Nie możemy zapominać, że fundament pod pompę ciepła to nie zapomniana konstrukcja z post-apokaliptycznego filmu — musi być starannie zaprojektowany. Jeśli planujesz umieścić swój sprzęt na płycie betonowej, upewnij się, że ma ona odpowiednie wymiary! Dla jednostek Mitsubishi fundamenty o wymiarach 100 x 75 cm najlepiej utrzymują stabilność i minimalizują drgania. W końcu chcesz, aby Twoja pompa działała cicho jak ninja, a nie jak rockman na koncercie! Pamiętaj również o hydroizolacji, gdyż chcesz, aby Twój fundament zniósł każdy kaprys pogody.
Na koniec warto również zwrócić uwagę na przewód zasilający oraz dostęp do instalacji wentylacyjnej. Jeżeli chcesz, aby Twoja pompa ciepła Mitsubishi płynnie współpracowała z resztą instalacji grzewczej, korzystne jest mieć wszystko na wyciągnięcie ręki! Prace instalacyjne mogą okazać się skomplikowane, dlatego warto zatrudnić specjalistów, którzy nie tylko pomogą, ale także upewnią się, że wszystkie wymogi techniczne są spełnione. Dzięki temu Twoja pompa ciepła nie tylko ogrzeje Twój dom, ale również serce!
Jakie materiały są niezbędne do budowy fundamentu?
Fundamenty stanowią kluczowy element każdego budynku, zwłaszcza gdy mówimy o pompach ciepła. Solidna podstawa jest niezbędna, ponieważ nawet najnowocześniejsza pompa ciepła napotyka trudności, gdy fundamenty są słabe. Do budowy fundamentu przede wszystkim potrzebujemy betonu, który w świecie materiałów budowlanych króluje. Każdy z nas zna to przyjemne uczucie, gdy po raz pierwszy wylewając beton, czujemy nadchodzącą stabilność konstrukcji. Dodatkowo do betoniarki dodajemy odrobinę zbrojenia, co zwiększa wytrzymałość naszej konstrukcji. Można więc powiedzieć, że zbrojenie i beton tworzą idealny duet, niczym Romeo i Julia, ale z większymi szansami na przetrwanie!
Materiałowy niezbędnik do fundamentu
Do naszego zestawu materiałów dołączają też piasek oraz żwir, które ułatwiają przygotowanie odpowiednio ułożonego podłoża. Warto również pamiętać o hydroizolacji! Fundament to bowiem nie tylko budowla, ale także oaza dla pompy ciepła, która nie lubi, gdy woda wkracza w jej przestrzeń. Dzięki warstwie hydroizolacyjnej unikniemy sytuacji, w której beton stanie się gąbką, a nasza pompa ciepła będzie mogła spokojnie funkcjonować bez obaw o zalanie czy osiadanie.
Szaleństwo z wymiarami!
Wszystko wygląda ładnie, ale ile materiału potrzebujemy? Ilość zależy od wymagań technicznych oraz specyfiki wybranego modelu pompy. Jeśli planujemy pompę ciepła w systemie powietrze-woda, musimy zadbać o odpowiednią głębokość i rozmiar fundamentu. Pamiętajmy także o zachowaniu wystarczającej odległości od elewacji budynku, ponieważ nawet fundamenty cenią sobie przestrzeń osobistą! Dodatkowo, jak to w budownictwie bywa, warto wziąć pod uwagę lokalne warunki gruntowe, aby uniknąć nieprzyjemnych niespodzianek. Buddyzm uczy, że nie ma sensu wzburzać wody stawów, a my dostosujemy fundamenty do charakterystyki gruntu!
Podsumowując, budowa fundamentu pod pompę ciepła wymaga staranności i przemyślanych wyborów materiałowych. Od betonu i zbrojenia, aż po piasek, żwir oraz hydroizolację – to prawdziwy zespół budowlany w akcji! Dlatego, chwyćcie kielnie i twórzcie konstrukcję, ponieważ solidny fundament to klucz do tego, by wasza pompa ciepła zapewniała komfort przez długie lata. A kto z nas nie chciałby być dumnym właścicielem fundamentu, który przypomina o prawdziwej mocy budownictwa?
Oto najważniejsze materiały potrzebne do budowy fundamentu:
- Beton
- Zbrojenie
- Piasek
- Żwir
- Hydroizolacja
Kroki do wykonania: Jak postawić solidny fundament pod pompę ciepła?
Założenie solidnego fundamentu pod pompę ciepła stanowi kluczowy krok, który pozwoli Twojej inwestycji działać bez zarzutu przez długie lata. Zanim chwycisz za łopaty, warto przeanalizować kilka istotnych kwestii. Przede wszystkim powinieneś zdecydować, jaki typ fundamentu sprawdzi się najlepiej. Wybór betonowych płyt to najczęstsza decyzja, jednak gdy czas nagli, dobrze zastanowić się nad fundamentami śrubowymi, które możemy wkręcić w grunt niczym śrubokręt w deskę. W trakcie podejmowania decyzji o fundamentach kieruj się wymaganiami technicznymi oraz własnymi preferencjami. Nie zapominaj również o budżecie – im bardziej skomplikowane rozwiązanie, tym droższe może być jego zrealizowanie.
Chcesz mieć pewność, że fundament pod pompę ciepła będzie solidny jak stalowa konstrukcja? Zacznij od odpowiedniego wykopu! Głębokość wykopu powinna być uzależniona od rodzaju gruntu, na którym stawiasz fundament. W końcu nie chcesz, aby Twoja pompa ciepła leżała na piasku jak król na tronie. Kiedy wykop jest już wystarczająco głęboki, musisz wypoziomować dno, a następnie włożyć zbrojenie. Tak, zbrojenie – to nie to, co nosi twój ulubiony superbohater, lecz zestaw stalowych prętów, które wzmocnią beton. Dopiero po tym etapie można przystąpić do wylewania betonu, a to będzie prawdziwa robota!
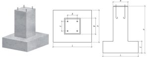
Wymiary fundamentu – nie ma co z tym żartować!

Wymiary fundamentu pod pompę ciepła nie pojawiają się bez przyczyny. Większość producentów podaje zalecenia dotyczące minimalnych wymiarów i głębokości fundamentu, które powinieneś bezwzględnie przestrzegać. Standardowe wymiary obejmują zazwyczaj płytę o szerokości i długości adekwatnej do rozmiaru jednostki zewnętrznej pompy. Pamiętaj, aby zaznaczyć odległość od gotowej elewacji budynku – to również istotny detal, jako że nikt nie chce się przewrócić na elewacji, jak na stoku narciarskim. Nie zapomnij, że fundament ma również chronić pompę przed śniegiem, dlatego dobrze go umiejscowić w odpowiedniej odległości od potencjalnych zasp śnieżnych.
Ostatnim, ale nie mniej ważnym krokiem jest hydroizolacja fundamentu, aby Twój beton nie zszedł w dół z wilgoci. Użycie materiału hydroizolacyjnego pozwoli uniknąć pęknięć i innych nieprzyjemnych niespodzianek. Pamiętaj, że dobrze przygotowany fundament stanowi klucz do sukcesu w instalacji pompy ciepła. Teraz, gdy już wiesz, na co zwrócić uwagę, możesz przystąpić do budowy swojego wymarzonego fundamentu. Tylko nie zapomnij zorganizować dobrą ekipę, bo samodzielne działanie w gąszczu betonu może być problematyczne!
Najczęstsze błędy przy przygotowywaniu fundamentu i jak ich unikać
Przygotowywanie fundamentów przypomina wbijanie igły w stare futro – na pierwszy rzut oka wydaje się proste, jednak wystarczy, że jedna igła trafi w niewłaściwe miejsce, a całe przedsięwzięcie pójdzie na marne! Zaczynając od największego błędu, wiele osób zaniedbuje analizę podłoża. Zamiast starannie poszukiwać najbardziej odpowiednich miejsc na postawienie fundamentu, często wybierają jedynie pierwszy lepszy skrawek ziemi. Takie chybione decyzje mogą skończyć się katastrofą, ponieważ każdy fundament potrzebuje solidnego wsparcia. Kluczowe jest znalezienie dobrego gruntu, który bez problemu poradzi sobie z naciskiem i nie osiada. Na przyszłość koniecznie upewnij się, że znasz grunt jak własną kieszeń!
Błędy w wymiarach fundamentów
Innym istotnym błędem okazuje się niewłaściwy pomiar głębokości fundamentów. Nie można tu polegać na szacunkach “na oko”, ponieważ dom nie jest piernikiem, który można zważyć na wadze kuchennej. Odpowiednia głębokość fundamentu stanowi podstawę całej konstrukcji – dosłownie! Dlatego warto poświęcić kilka chwil na dokładne określenie właściwej głębokości i wymiarów, aby uniknąć późniejszych problemów z osiadaniem. Przyszłe pokolenia z pewnością będą ci za to wdzięczne – a może powinny pomyśleć o zbudowaniu pomnika za twoje zasługi w budowlance!
Sztuka wylewki i zaprawy

Nie sposób również pominąć błędów popełnianych przy wylewce. Poszukiwanie idealnej mieszanki betonu nie przypomina zamawiania pizzy – jest jak spożywanie świeżo przygotowanego dania. Dlatego, gdy już wszystko wymieszasz, pamiętaj, aby zadbać o odpowiednią grubość oraz staranność podczas wylewania betonu. Grudy i pęcherze powietrza to twoi najgorsi wrogowie na tej drodze, dlatego lepiej ich unikać. Jeśli pragniesz, aby twój fundament był tak stabilny jak twarda podłoga jogurtu, stosuj systemy odwadniające, a twoja wiedza na temat unikania błędów stanie się twoim kluczem do sukcesu!
Oto najważniejsze aspekty, na które warto zwrócić uwagę podczas wykonywania fundamentów:
- Analiza podłoża przed wyborem miejsca wykopów
- Dokładny pomiar głębokości fundamentów
- Właściwa mieszanka betonu i staranność w wylewce
- Stosowanie systemów odwadniających
| Błąd | Opis | Jak Unikać |
|---|---|---|
| Brak analizy podłoża | Wybór niewłaściwego miejsca na fundament, co prowadzi do osiadania. | Dokładnie zbadaj grunt przed wyborem lokaizacji. |
| Niewłaściwy pomiar głębokości fundamentów | Szacowanie „na oko” może prowadzić do problemów konstrukcyjnych. | Precyzyjnie określ głębokość fundamentu zgodnie z wymogami budowlanymi. |
| Błędy w wylewce | Niewłaściwa mieszanka betonu oraz błędy w wylewaniu mogą osłabić fundament. | Zadbaj o odpowiednią grubość oraz używaj starannie wymieszanej mieszanki. |
| Brak systemów odwadniających | Zaniedbanie odprowadzania wody może prowadzić do osiadania i uszkodzenia fundamentu. | Stosuj odpowiednie systemy odwadniające w czasie budowy. |
Czy wiesz, że fundamenty wykonane z betonu o nieodpowiedniej mieszance mogą stracić nawet 50% swojej wytrzymałości? Dlatego tak ważne jest, aby starannie dobierać skład betonu i unikać oszczędzania na jakości materiałów!
